Maisons avec terrain à Pont-Audemer (27500)
-
700 m²
-
Pont-Audemer
-
3 chambres

-
700 m²
-
Pont-Audemer
-
3 chambres
Description
?? Pavillon neuf, Maison en contrat CCMI sécurisé ??
Vous rêvez de faire construire votre maison sur un terrain sélectionné avec soin ?
Découvrez ce projet de construction neuve en contrat de construction de maison individuelle (CCMI), qui vous garantit un prix ferme et définitif, des délais encadrés, et toutes les assurances obligatoires (garantie décennale, dommage-ouvrage, parfait achèvement…).
?? Description du modèle proposé :
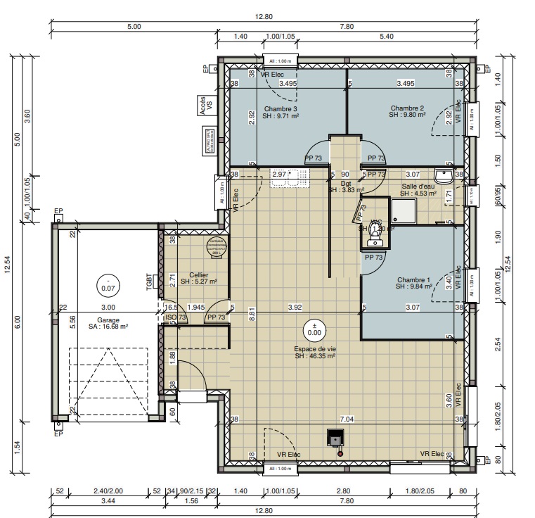
Maison au design contemporain, composée d’une belle pièce de vie traversante avec cuisine ouverte, chambres, salle de bains équipée, WC suspendus séparés, cellier/buanderie, et garage ou carport selon la configuration.
Architecture soignée, lignes épurées, nombreuses possibilités de personnalisation (revêtements, agencements intérieurs, domotique, chauffage au choix…).
?? Prestations techniques incluses :
• Construction conforme à la norme RE2020 (réglementation environnementale)
• vide sanitaire
• Murs en parpaings, enduit gratté
• Toiture en ardoise
• Menuiseries PVC double vitrage isolant
• Chauffage performant
• Isolation thermique renforcée : combles soufflés, doublage des murs avec laine minérale
• Conforme aux dernières normes d’accessibilité et d’économie d’énergie
?? Le tout sur un terrain situé dans un cadre agréable.
Accès rapide aux commodités, écoles, commerces et transports.
?? Une étude gratuite et personnalisée est possible pour adapter ce projet à vos besoins, vos goûts et votre budget.
?? Contactez-moi dès maintenant pour plus d’infos, une visite terrain et la conception de votre plan sur mesure !
-
185 000 €
-
700 m²
-
3 chambres
-
5 pièces
Mentions
Garanties et assurances obligatoires incluses (voir détails en agence). Hors raccordements, hors branchements. Hors frais de notaire. Terrain sélectionné et vu pour vous sous réserve de disponibilité et au prix indiqué par notre partenaire foncier.
Localisation
Faites nous part de votre projet
Agence de Rouen
76000 Rouen