Maisons avec terrain à Maule (78580)
-
900 m²
-
Maule
-
4 chambres

-
900 m²
-
Maule
-
4 chambres
Description
Beau terrain 900m² viabilité sur rue idéalement situé commerce et commodités a pieds.
Demeurance Val de seine du groupe Duval agence de Poissy, vous propose :
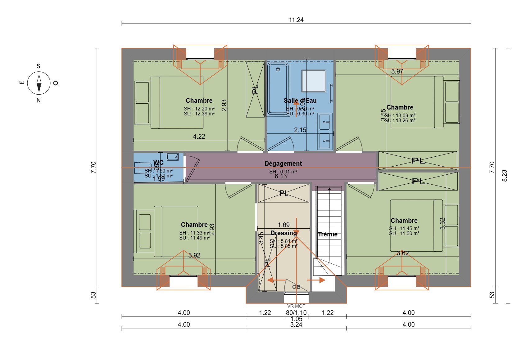
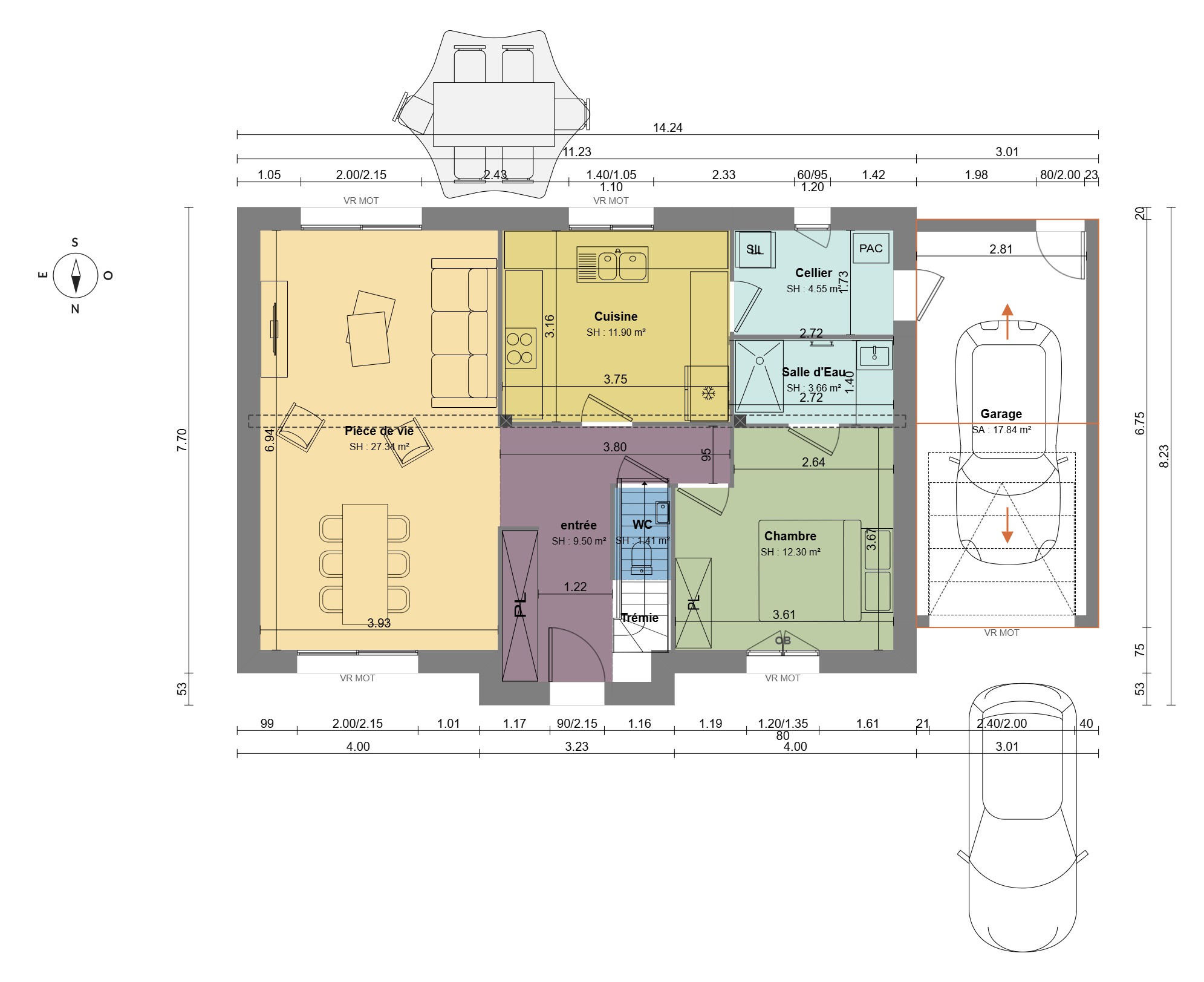
une maison individuelle correspondant à la réglementation thermique 2020, d’une surface de 120 m² habitable comprenant 4 chambres + bureau , dont une au rdc avec sa salle d’eau étage 3 grande chambres salle de bain wc séparé, un bureau disposant d’un bel espace de vie lumineux cuisine ouvert ou fermée.
Construction en BIO-BRIC, ou parpaing, pompe à chaleur plancher chauffage et RAFRAICHISSANT au sol, volets roulants électriques intégrés à la maçonnerie, équipée en domotique, Menuiseries ALU . Nous réalisons tous nos plans sur mesure, selon vos envies et en conformité avec les plans locaux d’urbanisme. Le prix comprend la maison, le terrain et les frais annexes.
Contactez moi au 06.30.75.25.00
-
465 000 €
-
900 m²
-
4 chambres
-
6 pièces
Mentions
Garanties et assurances obligatoires incluses (voir détails en agence). Hors raccordements, hors branchements. Hors frais de notaire. Terrain sélectionné et vu pour vous sous réserve de disponibilité et au prix indiqué par notre partenaire foncier.
Localisation
Faites nous part de votre projet
Agence de Sartrouville
78500 Sartrouville