Maisons avec terrain à Saint-Vaize (17100)
-
518 m²
-
Saint-Vaize
-
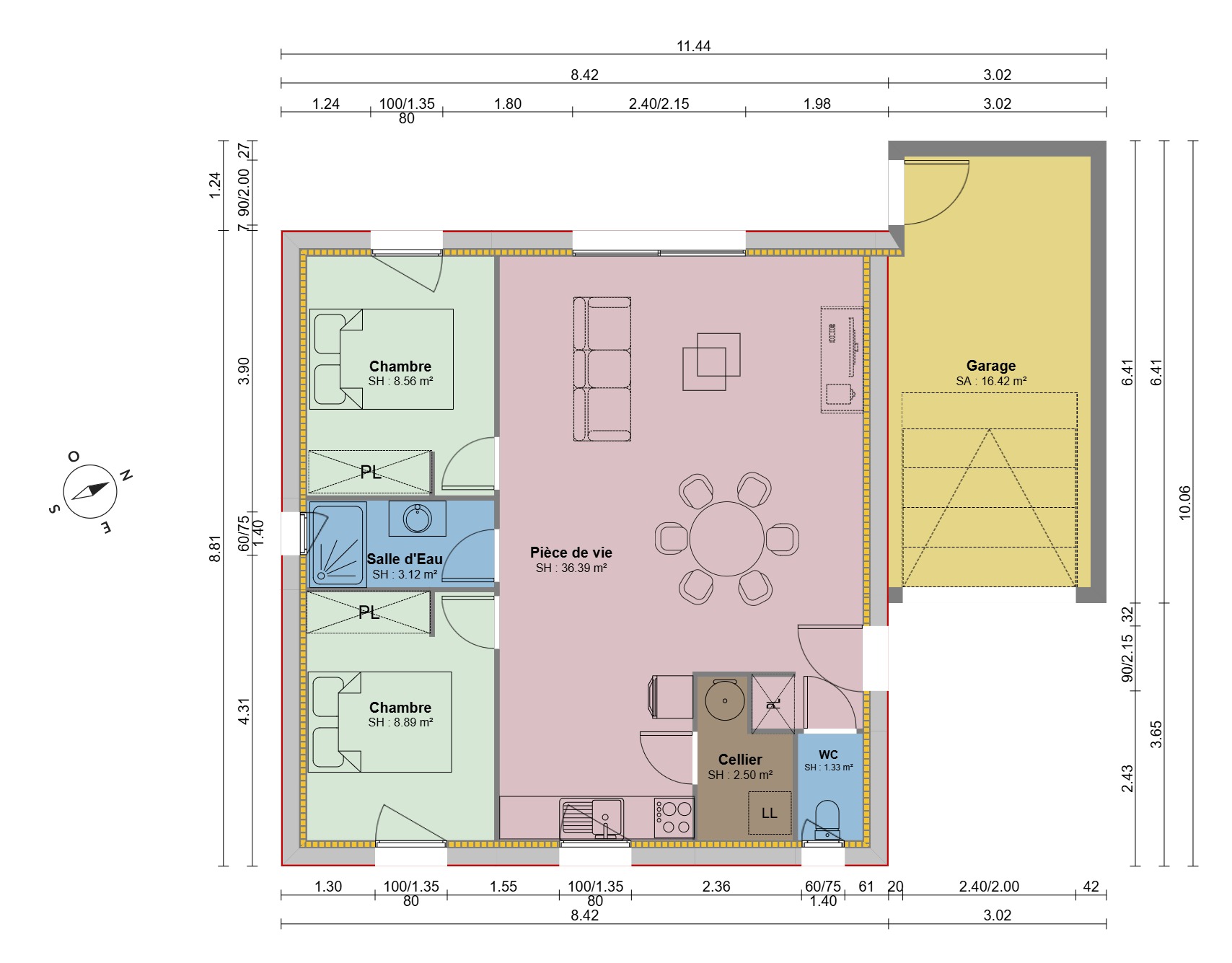
2 chambres

-
518 m²
-
Saint-Vaize
-
2 chambres
Description
Saint-Vaize, charmante commune de Charente-Maritime, séduit par son authenticité et sa douceur de vivre. Nichée dans un écrin de verdure, elle offre un cadre paisible et préservé, idéal pour les amoureux de nature et de tranquillité.
Proche de Saintes, elle allie le charme d’un village à la proximité des commodités et des sites historiques de la région. Entre ses sentiers bucoliques, son patrimoine typique et son ambiance conviviale, Saint-Vaize est un lieu où il fait bon s’installer et profiter pleinement de la sérénité charentaise.
NOUS AVONS D’AUTRES TERRAINS , CONSULTEZ-NOUS !
-
149 400 €
-
518 m²
-
2 chambres
-
3 pièces
Mentions
Garanties et assurances obligatoires incluses (voir détails en agence). Hors raccordements, hors branchements. Hors frais de notaire. Terrain sélectionné et vu pour vous sous réserve de disponibilité et au prix indiqué par notre partenaire foncier.
Localisation
Faites nous part de votre projet
Agence de Royan
17200 Royan