Maisons avec terrain à Médis (17600)
-
535 m²
-
Médis
-
4 chambres

-
535 m²
-
Médis
-
4 chambres
Description
Située aux portes de Royan, la commune de Médis allie charme rural et dynamisme côtier. Ce village accueillant offre un cadre de vie paisible, entouré de paysages verdoyants et préservés. Idéalement placée, Médis permet de profiter des plages de l’Atlantique tout en savourant la tranquillité de la campagne charentaise.
Avec ses commerces de proximité, ses équipements modernes et son riche tissu associatif, Médis est une commune où il fait bon vivre. Que vous soyez amateur de nature, de patrimoine ou à la recherche d’une qualité de vie exceptionnelle, Médis vous séduira par son authenticité et sa convivialité. Un lieu idéal pour poser ses valises et profiter pleinement de la Charente-Maritime !
NOUS AVONS D’AUTRES TERRAINS , CONSULTEZ-NOUS !
-
307 100 €
-
535 m²
-
4 chambres
-
5 pièces
Mentions
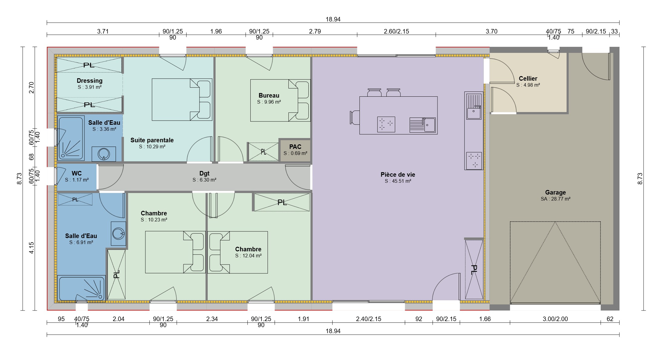
Imaginez une maison moderne en forme de L, parfaitement adaptée à votre style de vie. De plain-pied, elle offre un agencement optimisé avec 3 chambres spacieuses et des espaces de vie baignés de lumière, ouverts sur votre jardin pour un cadre de vie harmonieux.
Construite selon les dernières normes énergétiques, cette maison allie confort et économie. Le chauffage par pompe à chaleur garantit une chaleur douce et écoresponsable, tout en réduisant vos dépenses énergétiques.
Sans garage, elle libère encore plus d’espace pour vos envies d’aménagement extérieur. Offrez-vous un habitat contemporain, fonctionnel et respectueux de l’environnement, conçu pour vous et votre famille. Une maison pensée pour aujourd’hui et durable pour demain !Garanties et assurances obligatoires incluses (voir détails en agence). Hors raccordements, hors branchements. Hors frais de notaire. Terrain sélectionné et vu pour vous sous réserve de disponibilité et au prix indiqué par notre partenaire foncier.
Localisation
Faites nous part de votre projet
Agence de Royan
17200 Royan