Maisons avec terrain à Arvert (17530)
-
512 m²
-
Arvert
-
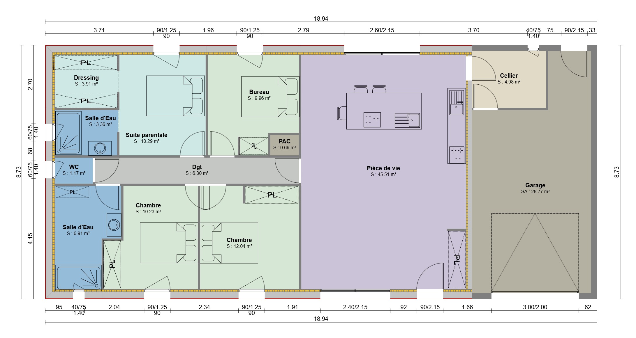
4 chambres

-
512 m²
-
Arvert
-
4 chambres
Description
Arvert, au cœur de la presqu’île d’Arvert en Charente-Maritime, est une commune qui allie nature préservée et dynamisme. Entourée de marais, de forêts et à proximité des plages de la côte Atlantique, elle offre un cadre de vie exceptionnel entre terre et mer.
Réputée pour son patrimoine ostréicole et son ambiance conviviale, Arvert séduit autant les amoureux de nature que ceux en quête d’authenticité. Avec ses commerces, ses services et sa qualité de vie incomparable, c’est un lieu idéal pour s’installer et profiter pleinement du charme charentais.
NOUS AVONS D’AUTRES TERRAINS , CONSULTEZ-NOUS !
-
317 900 €
-
512 m²
-
4 chambres
-
5 pièces
Mentions
Garanties et assurances obligatoires incluses (voir détails en agence). Hors raccordements, hors branchements. Hors frais de notaire. Terrain sélectionné et vu pour vous sous réserve de disponibilité et au prix indiqué par notre partenaire foncier.
Localisation
Faites nous part de votre projet
Agence de Royan
17200 Royan