Maisons avec terrain à Puilboreau (17138)
-
430 m²
-
Puilboreau
-
4 chambres

-
430 m²
-
Puilboreau
-
4 chambres
Description
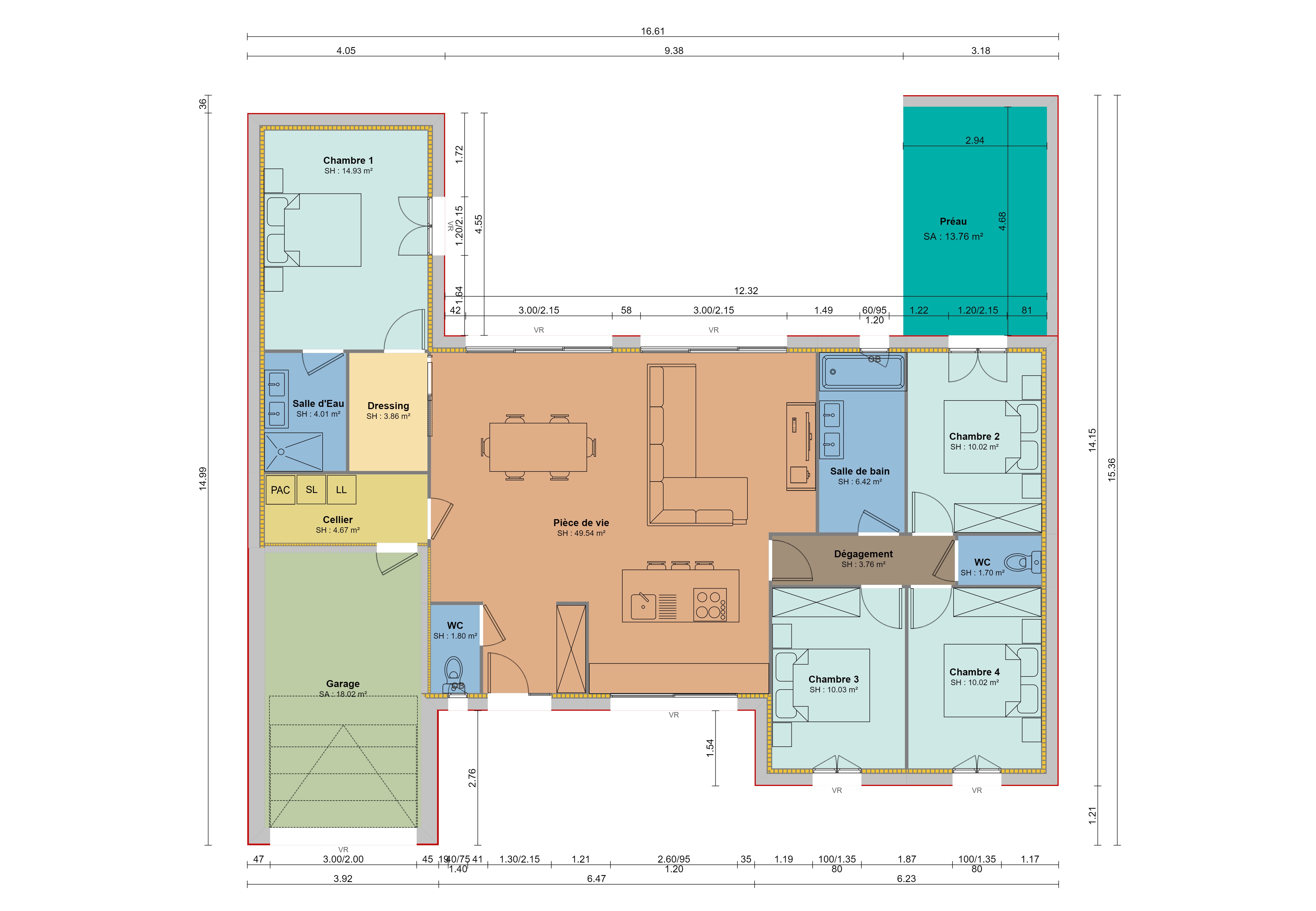
DEMEURANCE ATLANTIQUE vous propose de découvrir cette élégante maison toit plat de 120 m², parfaite pour une famille à la recherche de modernité et de confort.
Caractéristiques :
• Chambres : 4, dont une suite parentale équipée de sa propre salle d’eau pour plus d’intimité.
• Salle de bain : 1 salle de bain commune, fonctionnelle et spacieuse.
• Garage : Garage attenant pour un rangement pratique et sécurisé.
• Luminosité : Très lumineuse, avec de grandes baies vitrées apportant une atmosphère chaleureuse.
• Personnalisation : Prestations à personnaliser selon vos envies, vous permettant de créer un espace qui vous ressemble.
• Alliance des matériaux : Design contemporain avec une harmonie de matériaux pour un rendu esthétique unique.
Proche des écoles, des commerces et des transports, cette maison est idéale pour un cadre de vie agréable.
-
536 585 €
-
430 m²
-
4 chambres
-
7 pièces
Mentions
Garanties et assurances obligatoires incluses (voir détails en agence). Hors raccordements, hors branchements. Hors frais de notaire. Terrain sélectionné et vu pour vous sous réserve de disponibilité et au prix indiqué par notre partenaire foncier.
Localisation
Faites nous part de votre projet
Agence de La Rochelle
17440 Aytré