Maisons avec terrain à Benon (17170)
-
451 m²
-
Benon
-
3 chambres

-
451 m²
-
Benon
-
3 chambres
Description
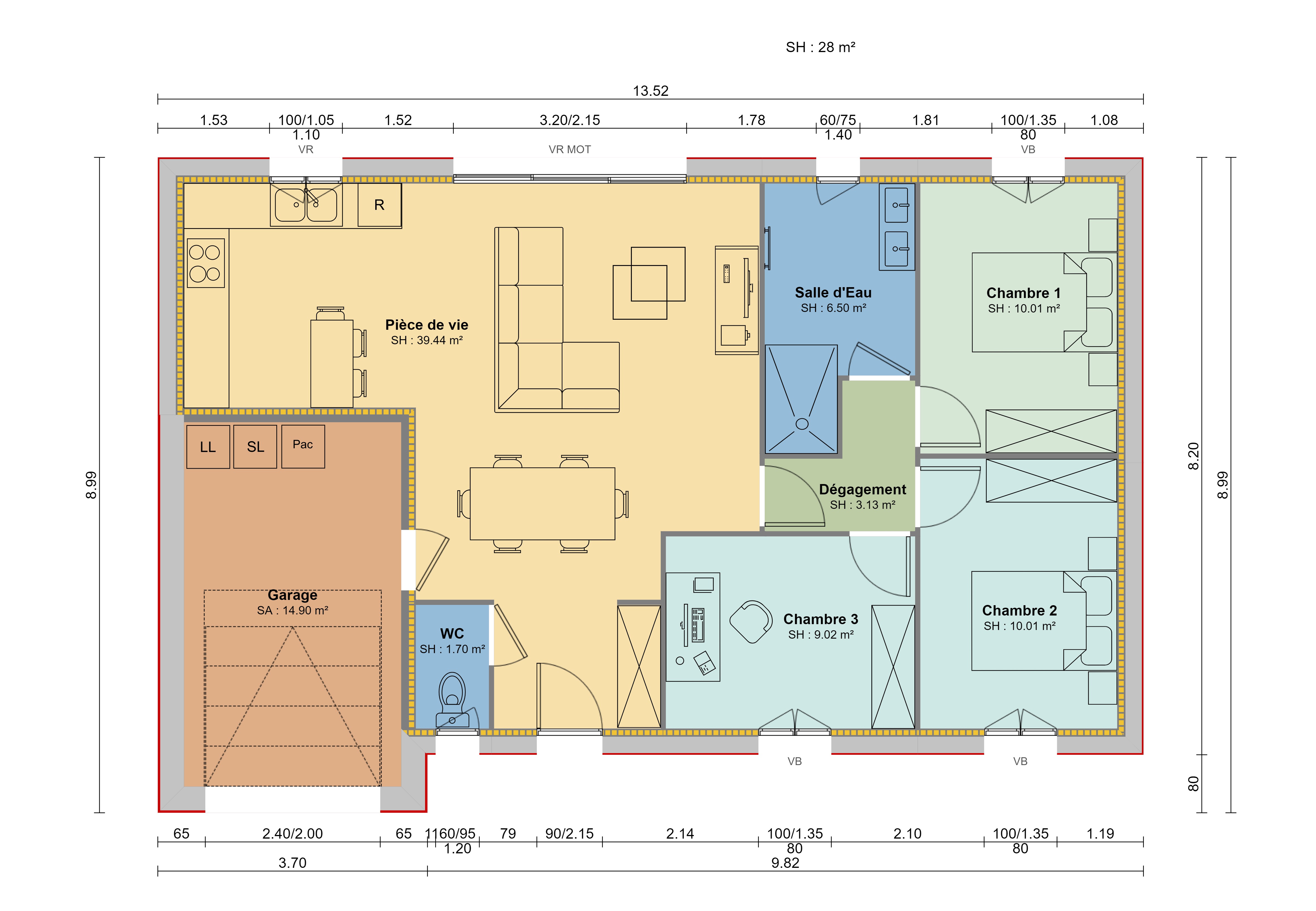
Située dans un quartier calme et prisé, DEMEURANCE ATLANTIQUE vous propose de découvrir cette charmante maison de 80 m², parfaite pour un jeune couple ou une famille.
Caractéristiques :
• 3 chambres spacieuses : Idéales pour les enfants ou un bureau.
• Salle d’eau équipée : Fonctionnelle et moderne.
• Grand garage : Pratique pour le stockage ou le stationnement.
• Grande baie vitrée : Apportant une luminosité exceptionnelle à la pièce de vie et donnant accès à un jardin convivial.
Points forts :
• Proximité des écoles, commerces et transports.
• Environnement paisible et convivial.
-
215 294 €
-
451 m²
-
3 chambres
-
4 pièces
Mentions
Garanties et assurances obligatoires incluses (voir détails en agence). Hors raccordements, hors branchements. Hors frais de notaire. Terrain sélectionné et vu pour vous sous réserve de disponibilité et au prix indiqué par notre partenaire foncier.
Localisation
Faites nous part de votre projet
Agence de La Rochelle
17440 Aytré