Maisons avec terrain à Port-Des-Barques (17730)
-
370 m²
-
Port-Des-Barques
-
4 chambres

-
370 m²
-
Port-Des-Barques
-
4 chambres
Description
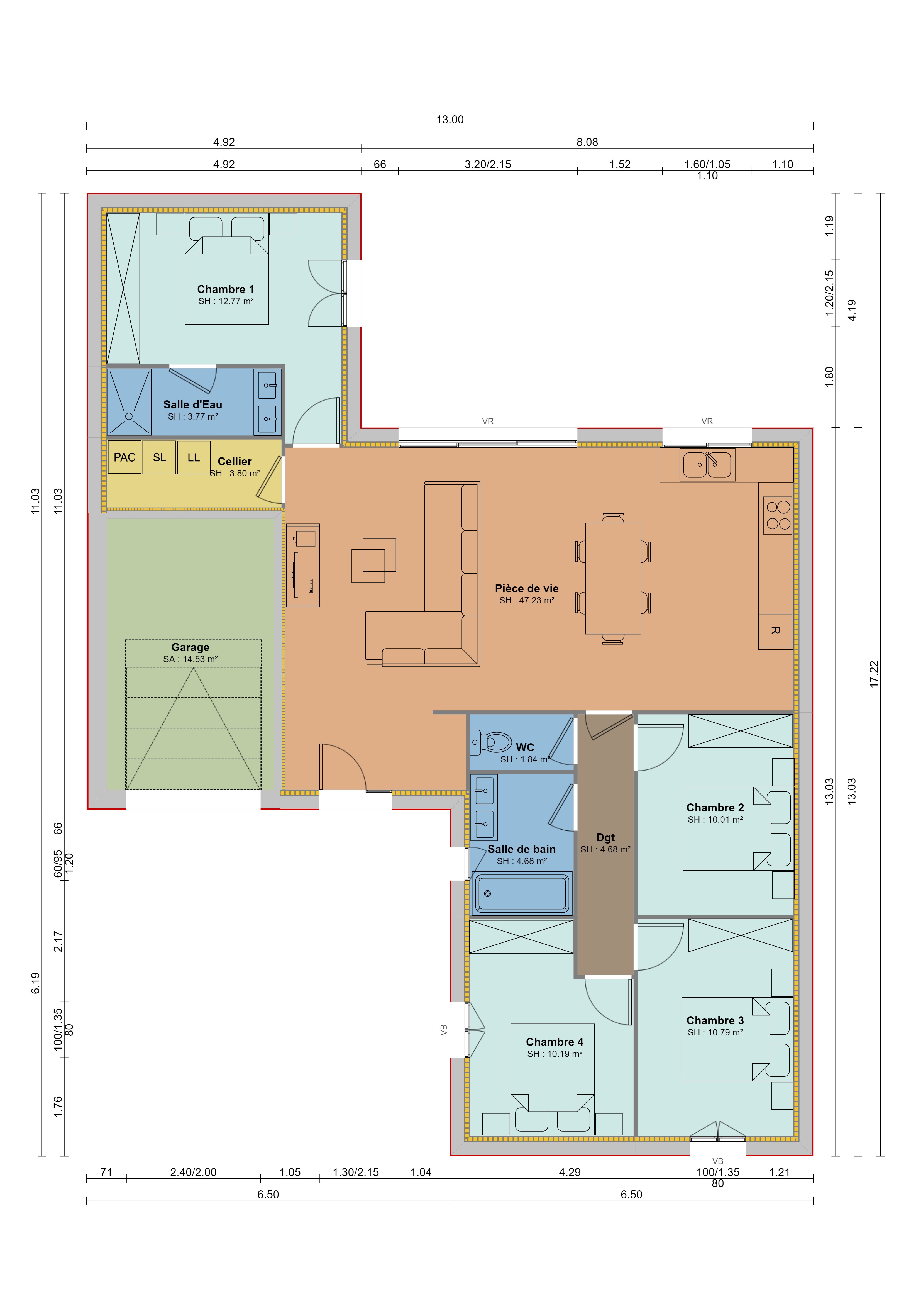
DEMEURANCE ATLANTIQUE vous propose de découvrir cette magnifique maison en L, idéale pour une famille.
Caractéristiques :
• Chambres : 4, dont une suite parentale avec salle d’eau privative.
• Salles d’eau : 2, offrant confort et praticité pour tous.
• Garage : Garage attenant pour un rangement optimal.
• Luminosité : Maison très lumineuse grâce à de grandes baies vitrées.
Profitez d’un cadre de vie agréable, à proximité des écoles, des commerces et des transports. Ne manquez pas cette opportunité !
-
253 185 €
-
370 m²
-
4 chambres
-
6 pièces
Mentions
Garanties et assurances obligatoires incluses (voir détails en agence). Hors raccordements, hors branchements. Hors frais de notaire. Terrain sélectionné et vu pour vous sous réserve de disponibilité et au prix indiqué par notre partenaire foncier.
Localisation
Faites nous part de votre projet
Agence de La Rochelle
17440 Aytré