Maisons avec terrain à Saint-Georges-Du-Bois (17700)
-
297 m²
-
Saint-Georges-Du-Bois
-
2 chambres

-
297 m²
-
Saint-Georges-Du-Bois
-
2 chambres
Description
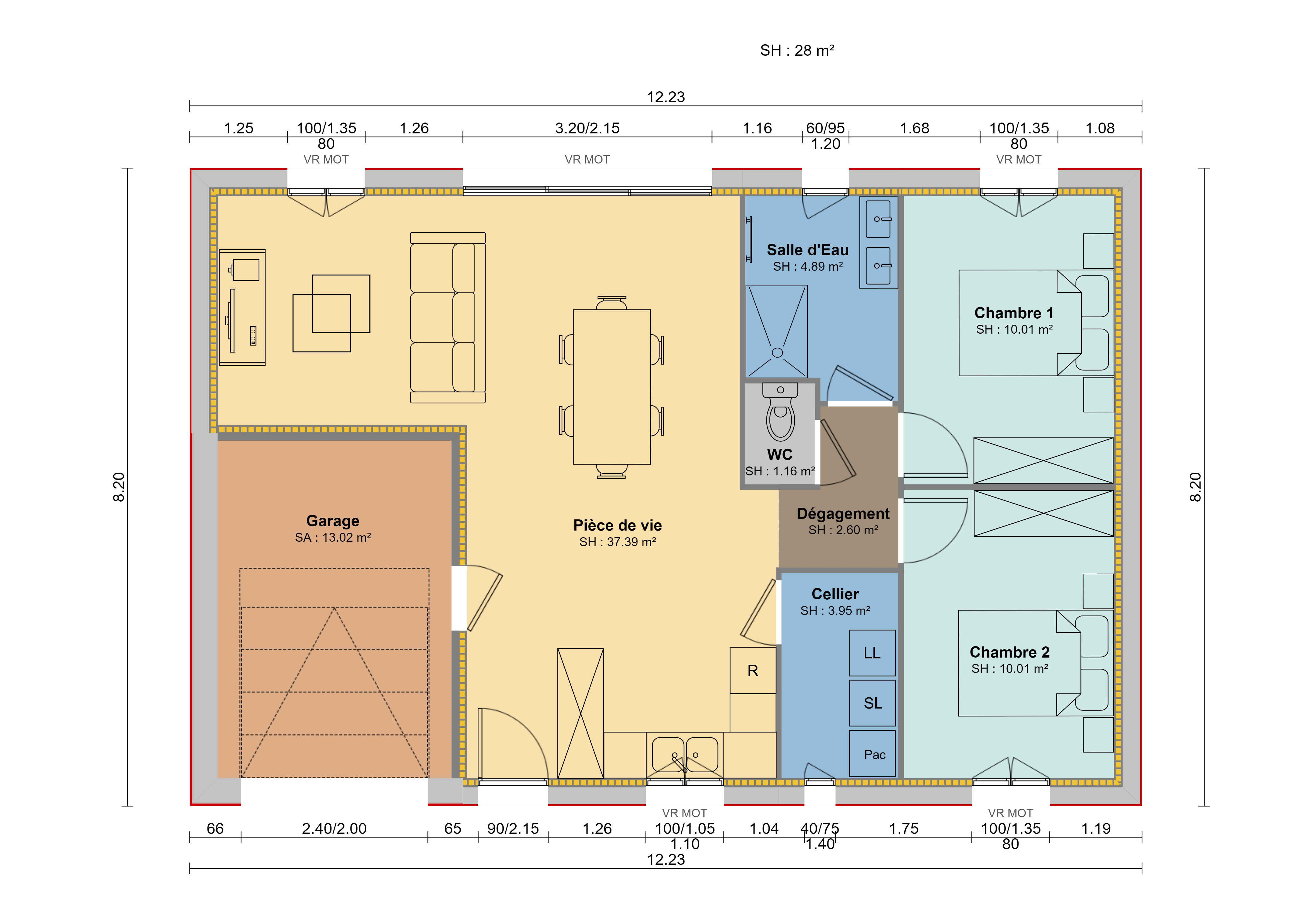
DEMEURANCE ATLANTIQUE vous propose de découvrir cette agréable maison de plain-pied de 70 m², située dans un quartier calme et convivial. Lumineuse et fonctionnelle, elle est idéale pour un premier achat ou une petite famille.
Caractéristiques :
• 2 chambres confortables
• Cuisine ouverte sur un séjour lumineux
• Salle de bains moderne
• Garage attenant
• Jardin privatif, parfait pour les activités en extérieur
À proximité des commerces et des transports, cette maison combine praticité et sérénité. Ne ratez pas cette belle opportunité !
-
179 335 €
-
297 m²
-
2 chambres
-
4 pièces
Mentions
Garanties et assurances obligatoires incluses (voir détails en agence). Hors raccordements, hors branchements. Hors frais de notaire. Terrain sélectionné et vu pour vous sous réserve de disponibilité et au prix indiqué par notre partenaire foncier.
Localisation
Faites nous part de votre projet
Agence de La Rochelle
17440 Aytré